LKH Feldbach LKH Feldbach LKH Feldbach LKH Feldbach LKH Feldbach LKH Feldbach LKH Feldbach LKH Feldbach LKH Feldbach LKH Feldbach LKH Feldbach LKH Feldbach LKH Feldbach LKH Feldbach LKH Feldbach LKH Feldbach LKH Feldbach LKH Feldbach LKH Feldbach LKH Feldbach

LKH Feldbach Erweiterung Intensiveinheit

Entwurfsgrundsätze

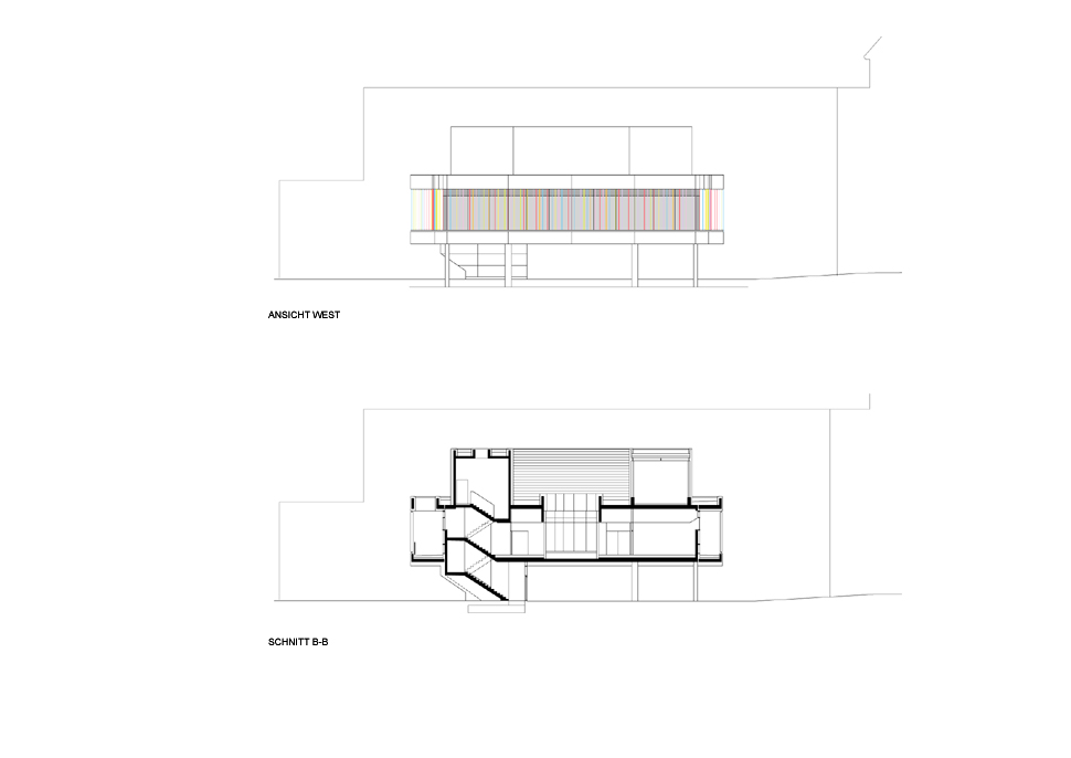
Das neue Gebäude ist als freistehender Baukörper konzipiert, der Bezüge zu seiner baulichen und freiräumlichen Umgebung herstellt: Die Ausrichtung des nördlich abfallenden Geländes und der Zufahrtsstraße wird in der Knickung der angrenzenden Längsfassade aufgenommen. Die südseitig entstehende hofartige Gebäudesituierung berücksichtigt die bestehende Bepflanzung und wird durch die Verschwenkung der Längsfassade zusätzlich gegliedert.

Durch die differenzierte Kontur fügt sich der Neubau harmonisch in den Umraum ein und die pavillionartige, eigenständige Wirkung des Baukörpers wird betont. Vom Bestand formal abgesetzt erlangt der aufgeständerte Neubau eine leichte, schwebende Wirkung. Der sensible Übergang des Innenraums der Intensivstation zum Außenraum erfolgt mittels einer räumlichen Schichtung. So wird der inneren Pfosten- Riegelfassade ein schmaler Freiraum vorgesetzt, der als Steingarten und teilweise als betretbare Besucherterrasse ausgebildet wird. Die äußerste Schicht bildet eine Abfolge von senkrechten, polychrom beschichteten Aluminiumformrohren, die auf das besondere Schutzbedürfnis der Patienten der Intensivstation reagiert.

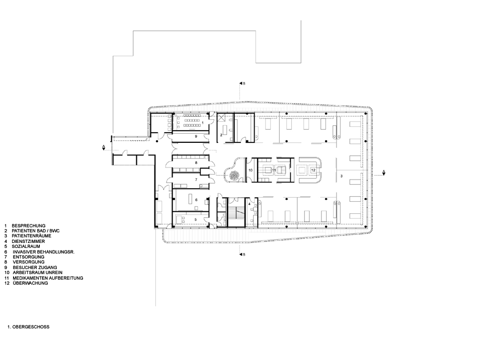
Ein begrüntes Atrium, sowie Baukörperdurchbrüche und durchgehende Oberlichtbänder bei den inneren Trennwänden gewährleisten die natürliche Belichtung und räumliche Gliederung.

Ein umlaufendes Vordach schützt vor dem steil einfallenden Licht der Sommersonne. Sämtliche Fassaden werden mit einem außen liegenden aktiven Sonnenschutz und aus nachhaltigen, möglichst wartungsfreien Materialien ausgeführt. Die massiven Bauteile im Obergeschoß erhalten eine hinterlüftete Verkleidung aus hell beschichteten Aluminiumtafeln, die den Rahmen für die färbigen Aluminiumprofile bilden.

Die polychrome Farbgestaltung und die lichtdurchfluteten Räume tragen zur modernen, humanen Gestaltung im Inneren und bei der Außenwirkung des Bauwerks bei.

Auftraggeber

KAGES
Generalplaner-Wettbewerb
1. Preis 2014
Fertigstellung 2017