HLW/HTL Braunau am Inn HLW/HTL Braunau am Inn HLW/HTL Braunau am Inn HLW/HTL Braunau am Inn HLW/HTL Braunau am Inn HLW/HTL Braunau am Inn HLW/HTL Braunau am Inn HLW/HTL Braunau am Inn HLW/HTL Braunau am Inn HLW/HTL Braunau am Inn HLW/HTL Braunau am Inn HLW/HTL Braunau am Inn HLW/HTL Braunau am Inn HLW/HTL Braunau am Inn

Extension of the HLW/HTL Braunau am Inn

Urban development and architectural topics

The beginnings of the school centre of Braunau am Inn date back to the year 1975.  The HTL was  completed in 1980 with the opening of the HLW. Due to the growing number of students and today's educational requirements, an open EU architecture competition for the planning of the extension of the educational centre was advertised by the city of Braunau am Inn in 2001.

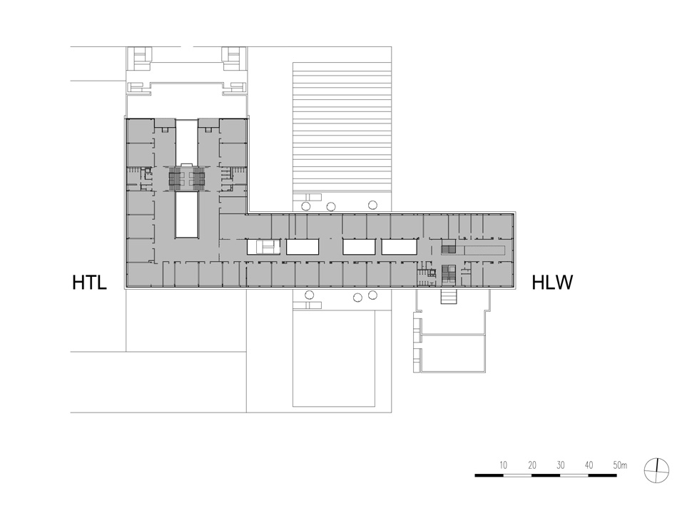
Additional space requirement of HLW and HTL including ten master classes, as well as special classrooms with adjoining rooms was implemented.  The two schools are combined with a bridge-like component. The old workshop area is located between HLW and HTL.

The shared learning and information centre complete with media room and a buffet with snack area as a communication zone are situated at the newly created interface of the HLW and HTL.
The spacious building breakthroughs in the central zone of the development ensure the required natural light exposure of including this area of the workshop and the adjacent classrooms. Roof terraces are associated with areas of extension breaks.

In the course of the design process, the bridge-like part of the old building was replaced with a two-storey laboratory buildling.  Adjacent to the laboratory building, landscaping designed atria create light exposure in the laboratory spaces and the remaining large wing of production workshops.

The extension building made of steel construction was carried out to raise minimum loads on the existing building. This construction enabled spans up to 16 m.  The continuous glazing of facades, which is structured by screen printed surfaces, is open and inviting.  It signifies a modern attitude.

Video

Contracting Authority

Town of Braunau am Inn represented by the federal real estate company