Campus Gertrude Fröhlich-Sandner Campus Gertrude Fröhlich-Sandner Campus Gertrude Fröhlich-Sandner Campus Gertrude Fröhlich-Sandner Campus Gertrude Fröhlich-Sandner Campus Gertrude Fröhlich-Sandner Campus Gertrude Fröhlich-Sandner Campus Gertrude Fröhlich-Sandner Campus Gertrude Fröhlich-Sandner Campus Gertrude Fröhlich-Sandner Campus Gertrude Fröhlich-Sandner Campus Gertrude Fröhlich-Sandner Campus Gertrude Fröhlich-Sandner Campus Gertrude Fröhlich-Sandner Campus Gertrude Fröhlich-Sandner Campus Gertrude Fröhlich-Sandner Campus Gertrude Fröhlich-Sandner Campus Gertrude Fröhlich-Sandner

Gertrude Fröhlich-Sandner Wien campus
Educational institution for children 0 - 10 years

Design Principles

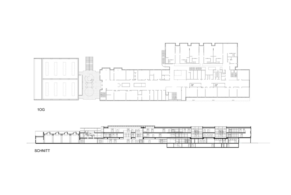
The building resides along the Ernst Melchior - Gasse, where the former streetcar tracks are located. Due to the institution's lower height development, it creates an interesting contrast to the
surrounding buildings. The development of the campus begins with a large, covered area, where both kindergarten and the elementary school have separate entrances. This central forecourt represents an urban signal through the spatial education area and the striking V form which supports the construction of the overlying building of the elementary school.


Kindergarten and elementary children are free to move throughout the building and outdoors They
also have access to facilities such as the library, dining and creative areas. The kindergarten sector orients and opens to the garden, whereby the stacked group rooms are partly elevated and have covered outdoor areas. The column-like arrangement of the group rooms are visible externally as a single structure and mesh with the space. The break and circulation areas are divided and lit by generous vertical openings. In these zones, interactive learning and playing is possible. Two atriums create additional internal outside areas, which allow you to experience the changing of seasons. Each level has open spaces in the form of break terraces. The project is gender mainstreaming which is the lead project of the city of Vienna. Retreat areas with tiered seating and atriums in the interior and exterior provide an abundance of different rooms which can be occupied by each gender. The Campus was the first building to be awarded the sustainability Medal of the ÖGNI.

Contractor

Vienna Municipal Department 19 and 34
EU wide competition
1st Prize 2008

Planning

Architecture: Kaufmann - Wanas

Landscape planning and gender mainstream: Brigitte Lacina