Rettungsstation und Amtshaus Wien Rettungsstation und Amtshaus Wien Rettungsstation und Amtshaus Wien Rettungsstation und Amtshaus Wien Rettungsstation und Amtshaus Wien Rettungsstation und Amtshaus Wien Rettungsstation und Amtshaus Wien Rettungsstation und Amtshaus Wien Rettungsstation und Amtshaus Wien Rettungsstation und Amtshaus Wien Rettungsstation und Amtshaus Wien Rettungsstation und Amtshaus Wien Rettungsstation und Amtshaus Wien Rettungsstation und Amtshaus Wien

Ambulance station and Amtshaus Wien Mariahilf | 2004-2008

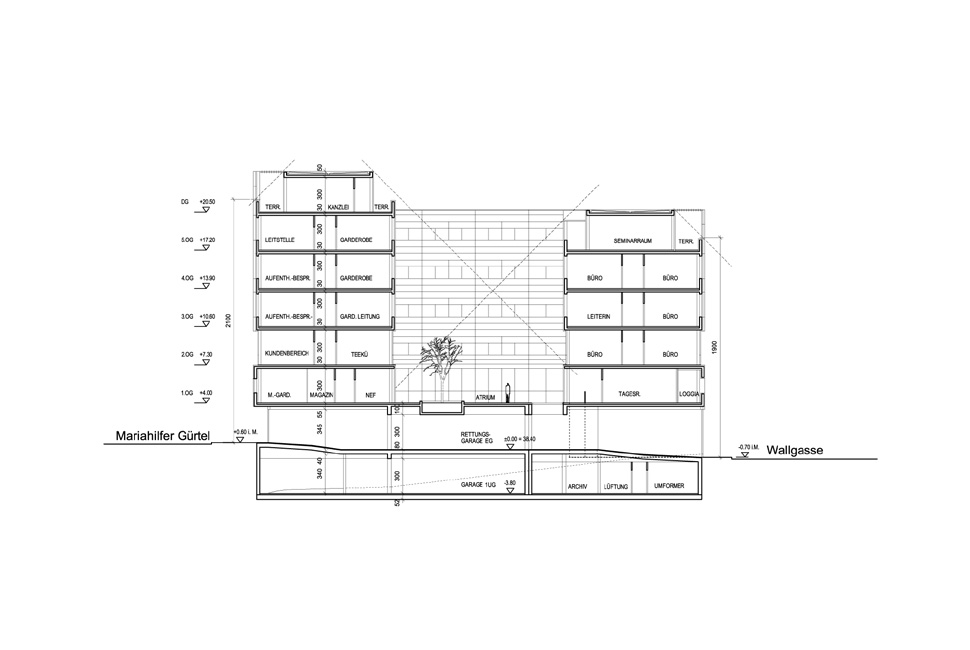
Design principles

The sculptural form of the new building makes it possible to produce a relationship with the
surrounding urban space. The ambulance station located on the ground floor and first floor
utilizes the full depth of the property.  Positioned near the Gürtel as well as in the Wallgasse,
the station creates a highly effective facade.

 
An attractive, interior atrium divides the ambulance station and exposes light to the team facilities. The previous ambulance offices are located along the Mariahilferstraße and Wallgasse. Both components will receive separate stairwells which connect by a traverse.  Every room ensures the second escape route and establishes synergies.

The extremely compact structure which is implemented in steel concrete skeleton, meets the required efficiency. The building facades created with massive parapeten with dense insulation enables the standards for low energy housing.
To achieve a uniform effect of the facade, the screen printed parapeten cover the roof with special glazing.  An additional design element is the external, horizontal, continuous solar shading. The purist effect of the building is increased by the reduction of two materials, glass and technical anodized aluminum. The construction process takes place in two stages.  The operation of the ambulance station is guaranteed over the entire construction period.

Contracting Authority

City of Vienna, Municipal Department 19 and 34 Municipal Department