LKH Rottenmann LKH Rottenmann LKH Rottenmann LKH Rottenmann LKH Rottenmann LKH Rottenmann LKH Rottenmann LKH Rottenmann LKH Rottenmann LKH Rottenmann LKH Rottenmann LKH Rottenmann LKH Rottenmann LKH Rottenmann LKH Rottenmann

LKH Rottenmann

Urban development and architectural topics

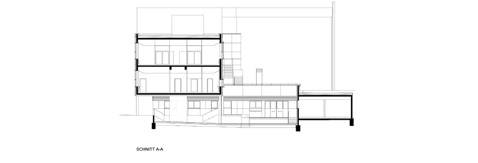
The new functional wing connecting westward to the existing hospital extends to a length of approximately 45 meters along the Gemeindestrasse. The two upper floors are grouped together in a bar-like structure. The clear, modern design of the cubic building creates a conscious counterpoint to the historical structure of the regional hospital. The building is connected by a glass-enclosed walkway. The uniform appearance of the building is underlined by this turning point. The continuous glass glazing of the longitudinal facade is structured through screen printed surfaces that are opening and inviting.

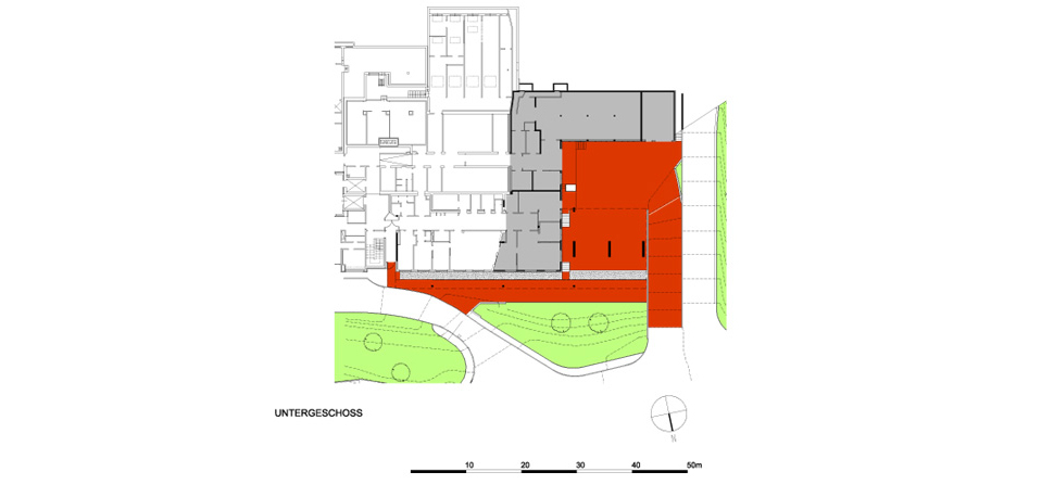
The space and function programme of the new extension is horizontally organised. By minimizing the internal development of the individual functional areas, the existing and new construction area of the basement focuses on building a solid network.  The existing dialysis center will include more treatment units, as well as corresponding ancillary rooms. The central delivery rooms are built into the hillside and are grouped around a courtyard. The ground floor consists of the Radiology Department with other groups for a state of the art magnetic resonance tomography, ambulance areas and service rooms for doctors and nursing staff.  The first floor includes the intensive care unit with different areas of nursing ICU and IMC. The patient areas are characterized by an open and light-filled space. In the ICU, the necessary partitions built with predominantly glass construction are built to make views of the surrounding mountain panorama of all beds possible.
The optimum shaping is made by steel concrete skeleton, which is marked by bold projecting cantilevered ceiling panels and carriers.


Video

Contracting Authority

Steiermärkische Krankenanstaltengesellschaft m.b.H

EU widely praised architect competition 2000, 1.Preis

Completion: June 2007