Arztpraxis Wien Neustift am Walde Arztpraxis Wien Neustift am Walde Arztpraxis Wien Neustift am Walde Arztpraxis Wien Neustift am Walde Arztpraxis Wien Neustift am Walde Arztpraxis Wien Neustift am Walde

Physician practice Vienna Neustift am Walde

 

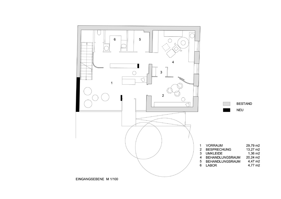
The task of  the architect is to convert a small, former winemaker's House in Neustift am Walde, on the outskirts of Vienna, into a modern, functional practice in Obstetrics and Gynecology.  The original, angular, single-story house along the street and the garden side, previously a porch is replaced by a two-story glass cube. The uniqueness of the new reconstruction is created through the dialogue of the open and transparent design.  Furthermore, the addition with the combination of the compact volume of the previous building creates a massive effect which is enhanced by the orange paint. This colour greets the patients upon entering the practice.  To accent the registration counter, the monochrome tones - white, grey and light wood – are selected to differentiate the areas in the practice.

The layout follows the complex processes of office hours, registration, waiting area, preliminary meeting, dressing rooms, examination and laboratory.  It is diligently solved for patients, doctor and staff. To achieve a spatial effect, despite the small space requirements, walls are omitted in the patient area. The necessary visual separation of the individual areas are carried out through hanging, curved plywood from the ceiling extending down to the floor.  

An indirect illuminated staircase connects the extension area in the upper level with the entrance and open waiting area.  Large surface glass walls connect to the garden.  The materials used include bleached maple,concrete and aluminum anodized.  

Sabine Damaschke Medical Practices: Planning and Architecture.
2nd revised edition 2003, 1995 by Verlagsanstalt Alexander Koch GmbH, Leinfelden - Echterdingen, ISBN 3-87422-653-0

Planning

O. Kaufmann
Remodeling a former winemaker's house in Neustift am Walde / Vienna into a modern Gynecology Clinic